Erstbezug – Moderne 2-Zi.-Wohnung mit Balkon
Objektbeschreibung:
Zur Miete bieten wir Ihnen hier eine moderne 2-Zimmer-Wohnung im 1. Obergeschoss in Erstbezug. Das Gebäude wurde in solider, wohngesunder Ziegel-Massiv Bauweise im KfW 55 Standard erstellt. Die hochwertige Ausstattung sowie die freundlich gestalteten Räume werden Sie überzeugen.
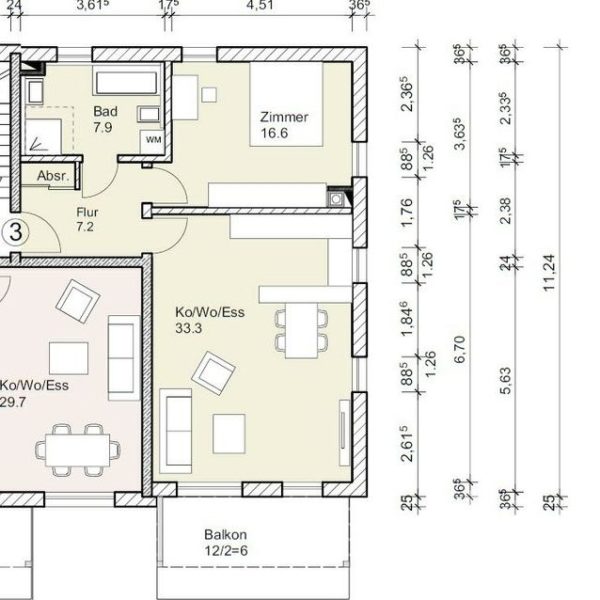
Die Wohnung befindet sich im 1. Obergeschoss eines kleinen Mehrfamilienhauses. Neben einem großzügigen Schlafraum finden Sie einen offenen Wohn-Ess-und Kochbereich mit Zugang zum Balkon.
Das freundliche Tageslichtbadezimmer mit Badewanne und begehbarer Dusche besticht durch seine hochwertige Sanitärausstattung, sowie einem elektrischen Handtuchtrockner.
In den Schlaf- und Wohnräumen wurde Echtholzparkett in Eichenoptik verlegt. Helle Innentüren bieten einen herrlichen Kontrast zum Boden und verleihen der Wohnung eine freundliche Atmosphäre. Beheizt wird das Gebäude über eine Pelletheizung mit Pufferspeicher. Sämtliche Räume verfügen über eine Fußbodenheizung.
Die Rollläden sind größtenteils elektrisch bedienbar. Zur Wohnung gehört außerdem ein Kellerabteil, ein Carport und ein weiterer Stellplatz. Ein Waschmaschinenanschluss in der Wohnung ist ebenso vorhanden.
Lagebeschreibung:
Die Wohnung befindet sich in einer ruhigen und sehr beliebten Wohnsiedlung in Ergolding. Sämtliche Geschäfte des täglichen Bedarfs, Ärzte, Schulen und diverse Freizeitmöglichkeiten sowie eine Haltestelle der Stadtbusse Landshut befinden sich in der Nähe.
Der Markt Ergolding grenzt direkt im Nordosten an die Hochschulstadt Landshut und hat ca. 12.000 Einwohner. Die Stadt Landshut zählt ca. 72.000 Einwohner und ist der wirtschaftliche Schwerpunkt von Niederbayern. Die Stadt ist verkehrsmäßig sehr gut erschlossen. Durch die Autobahn A 92 besteht eine gute Anbindung in die Landeshauptstadt München und zum Flughafen München (ca. 35 min.) Die Bundesstraßen B 299, B 15, B 15-neu und B 11 sind ebenfalls in wenigen Minuten zu erreichen.
Energiekenndaten:
Energieausweis:
Bedarfsausweis
| Ausstellungsdatum: | 02.2020 |
| Endenergiebedarf: | 48,2 kWh/(m² a) |
| Primärenergiebedarf: | 11,5 kWh (m² a) |
| Baujahr Gebäude: | 2021 |
| Effizienzklasse: | A |
| Gebäudetyp: | Mehrfamilienhaus |
| wesentlicher Energieträger: | Pellets |
Sonstiges:
Die von der Stirner Immobilien GmbH gemachten Angaben bezüglich der Immobilie beruhen auf den ihr erteilten Informationen durch Dritte, namentlich durch den Verkäufer/Vermieter. Eine Haftung für die Richtigkeit oder Vollständigkeit der Angaben in Exposés, Prospekten, Beschreibungen u. ä. kann die Stirner Immobilien GmbH daher nicht übernehmen.
Überblick
- Referenz: vm2124
- Wohnfläche: ca. 71m²
- Baujahr: 2021
- Zimmer: 2
- Bäder: 1
- Heizung: Pelletheizung mit Pufferspeicher
- Energieausweisart: Bedarfsausweis
- Endenergiebedarf: 48,2 kWh/(m² a)
- Primärenergiebedarf: 11,5 kWh/(m² a)
- Energieträger: Pellets
- Energieeffizienzklasse: A
- Verfügbarkeit: VERMIETET
Kaltmiete
Euro 850,00
Kaution
3 Monatsmieten









